• Home
  • Latest Projects
  • Gallery
  • Contact
Menu

Dzign House Architecture

  • Home
  • Latest Projects
  • Gallery
  • Contact

Approval granted for 2no. self-contained flats for assisted living in Lincoln

March 4, 2019

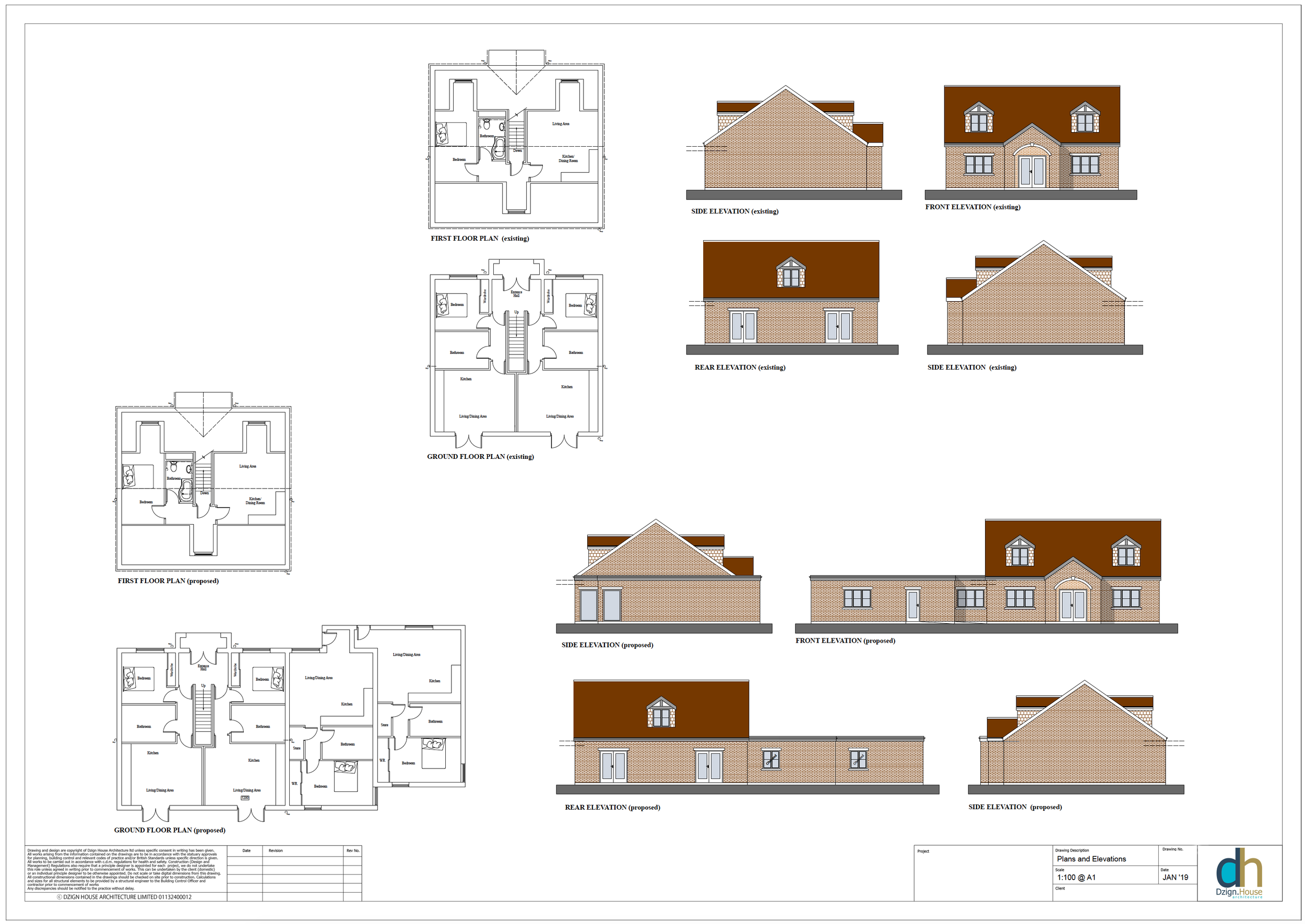
Approval granted this week for the erection of a single storey side extension to accommodate 2no. self-contained flats for assisted living.

Screen Shot 2019-03-04 at 16.41.26.png
← Approval granted for single storey rear and side extension in Moor Allerton, LeedsHighly commended award gratefully received at the Leeds Architecture Awards 2019! →
No results found
Contact us

Copyright © 2026 Dzign House Architecture Limited : All Rights Reserved