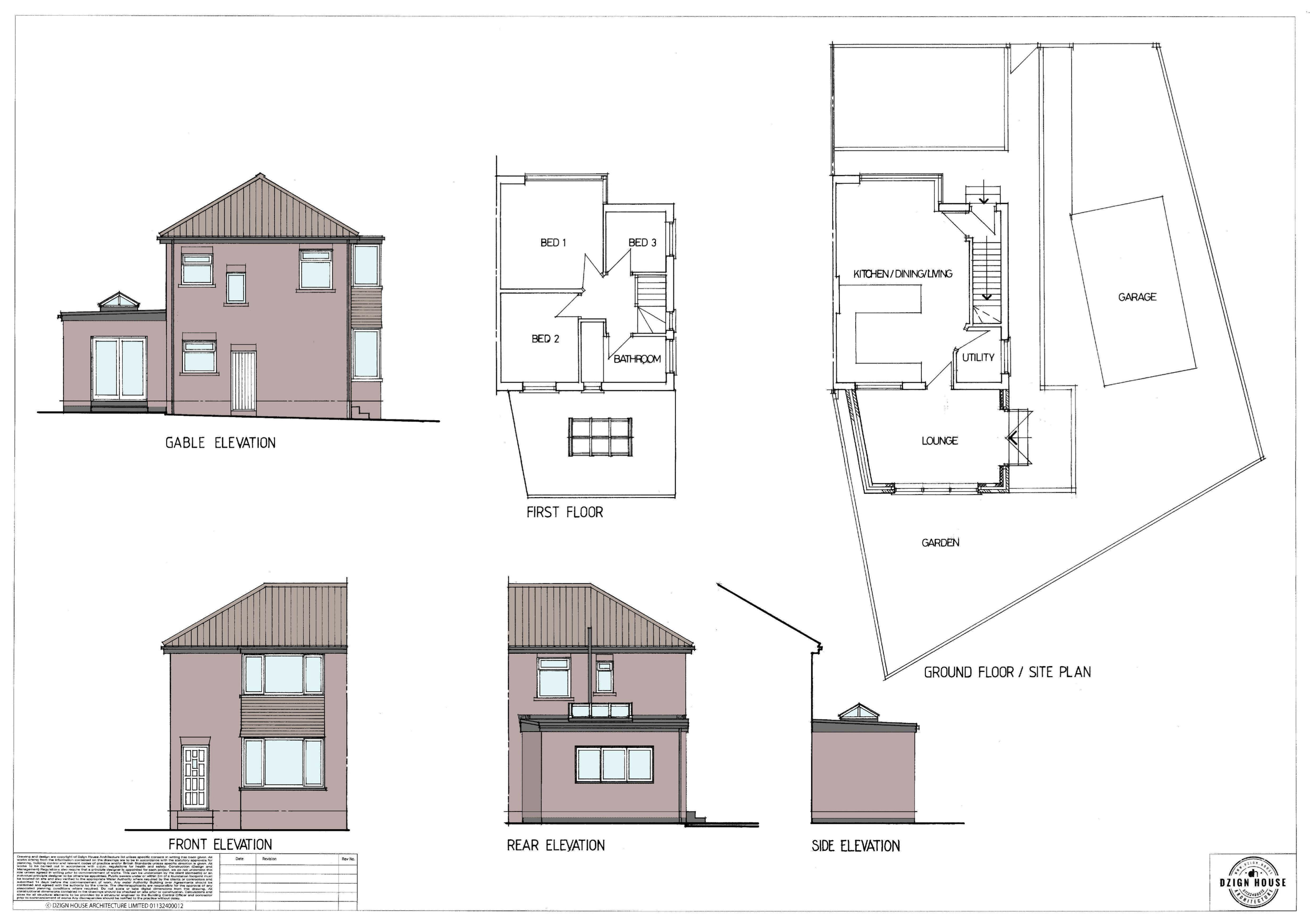
This week we have received an approval for a single storey rear extension to a property in Meanwood, Leeds, providing the property with a new lounge space overlooking the garden areas #yorkshire #design #architecture #planning #residential #house #home #refurbishment #bespoke #inspire #inspiration #uk #building #construction #archdaily #building
